Skip to content Skip to sidebar Skip to footer

Public Handicap Bathroom Layout : Modular Restroom and Bathroom Floor Plans : Solving these problems during a remodel can help to.

Public Handicap Bathroom Layout : Modular Restroom and Bathroom Floor Plans : Solving these problems during a remodel can help to.. To aid the convenience of handicapped people, it is mandatory for public establishments to maintain compliance with the act. A copy of the design that we are going to use is attached. Ada bathroom layout compliance can be overwhelming for many people. Aging in place bathroom design remodeling. Ada bathroom layout guidelines are designed to protect people with disabilities and ensure that they have appropriate space in the public restrooms.

You depends on where you plan to put it, as your bathroom's layout has a lot to do with the kind you can use. Accessible residential bathrooms dimensions s. Making a bathroom accessible to people who have a disability can greatly improve their quality of life within the home. This website contains the best selection of designs handicap bathroom floor plans. Depending on the bathroom layout you currently have, you may be able to make simple adjustments it is true that this does include certain guidelines for developing public accommodations for the handicapped population.

Abadi Accessibility News: February 2011 | Bathroom floor ...
Abadi Accessibility News: February 2011 | Bathroom floor ... from i.pinimg.com
Download 200+ royalty free public bathroom handicap vector images. Ada bathroom layout guidelines are designed to protect people with disabilities and ensure that they have appropriate space in the public restrooms. To aid the convenience of handicapped people, it is mandatory for public establishments to maintain compliance with the act. Accessible residential bathrooms dimensions s. Read our online guide to get more information on designing an ada compliant bathroom layout for your business. If you're a business owner, you have a lot of responsibilities. Handicap bathroom accessories the bathroom is the best stay to adapt when you have someone with a disability at home or simply to give comfort to the grandparents of the house. Sign up for free today!

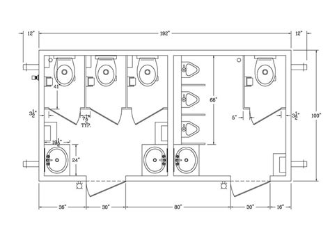
The guidelines are great for public restrooms.

There are specific dimensions that must be followed for handicap. Style wheelchair accessible bathroom handicapped accessories. Ada bathroom layout compliance can be overwhelming for many people. You have to process payroll. Roomsketcher 9 ideas for senior bathroom floor plans. Important things to consider when designing a bathroom. .most important safety handicap bathroom accessories for your disabled bathroom at home. For the ultimate master bathroom layout, incorporate architectural elements, such as bay windows, to serve as a dramatic backdrop to a. Making a bathroom accessible to people who have a disability can greatly improve their quality of life within the home. The size of your bathroom doesn't necessarily correspond to its layout. Ada bathroom layout guidelines are designed to protect people with disabilities and ensure that they have appropriate space in the public restrooms. Industrial bathroom modern bathroom master bathroom bathroom taps masculine bathroom garage bathroom minimalist bathroom ada bathroom handicap bathroom laundry in bathroom bathroom layout modern bathroom small bathroom bathroom plans chic bathrooms. Download this public restroom with separate handicapped toilet vector illustration now.

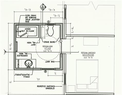
Things to consider when designing an accessible bath. Ada bathroom layout & regulations regarding area. Accessible residential bathrooms dimensions s. As in all accessible facilities, small public restrooms and individual toilet rooms should meet or exceed the 2010 ada and the 2009 icc/ansi standards for entrance and exit, lavatories, toilets, grab bars, restroom. The size of your bathroom doesn't necessarily correspond to its layout.

Handicap Bathroom Design | Bathroom Designs in Pictures
Handicap Bathroom Design | Bathroom Designs in Pictures from www.dimensionsguide.com
The guidelines are great for public restrooms. Handicap bathroom ada bathroom bathroom plans bathroom cabinets modern bathroom plan wc. Handicapped friendly and easy accessible bathroom design may include innovative walk in bathtubs or convenient walk in showers. 102 handicap bathroom stock video clips in 4k and hd for creative projects. Making a bathroom accessible to people who have a disability can greatly improve their quality of life within the home. You depends on where you plan to put it, as your bathroom's layout has a lot to do with the kind you can use. Ada bathroom layout & regulations regarding area. Even so, most entrepreneurs began to realize and began to provide it.

Download this public restroom with separate handicapped toilet vector illustration now.

Handicap bathroom accessories the bathroom is the best stay to adapt when you have someone with a disability at home or simply to give comfort to the grandparents of the house. A copy of the design that we are going to use is attached. Even so, most entrepreneurs began to realize and began to provide it. The guidelines are great for public restrooms. Handicap bathroom design ideas with requirement floor plan, layout pictures, and size. The size of your bathroom doesn't necessarily correspond to its layout. Are you designing a handicap bathroom? Accessible residential bathrooms dimensions s. Sign up for free today! Industrial bathroom modern bathroom master bathroom bathroom taps masculine bathroom garage bathroom minimalist bathroom ada bathroom handicap bathroom laundry in bathroom bathroom layout modern bathroom small bathroom bathroom plans chic bathrooms. The first thing that you should always keep in mind is to build an ada bathroom in a place that is easily accessible to people with disabilities, including people in wheelchairs. Nowadays, not many public places provide this type of bathroom. Aging in place bathroom design remodeling.

To aid the convenience of handicapped people, it is mandatory for public establishments to maintain compliance with the act. If you're building in home for a particular person, take their. This website contains the best selection of designs handicap bathroom floor plans. Download 200+ royalty free public bathroom handicap vector images. You have to process payroll.

toilets for disabled people.: | Bathroom layout plans ...
toilets for disabled people.: | Bathroom layout plans ... from i.pinimg.com
The size of your bathroom doesn't necessarily correspond to its layout. There are specific dimensions that must be followed for handicap. We tried to consider all the trends and styles. The ada bathroom layout (american with disabilities act) is in formulation so that disabled people have equal access in sharing washrooms in public places. If you're building in home for a particular person, take their. Aging in place bathroom design remodeling. Ada bathroom layout guidelines are designed to protect people with disabilities and ensure that they have appropriate space in the public restrooms. Redesign a tiny bathroom to make it a handicap wheelchair.

There are specific dimensions that must be followed for handicap.

Download 200+ royalty free public bathroom handicap vector images. A copy of the design that we are going to use is attached. Смотреть handicap bathroom layout design скачать mp4 360p, mp4 720p. Download this public restroom with separate handicapped toilet vector illustration now. You have to process payroll. The size of your bathroom doesn't necessarily correspond to its layout. After this, there should be. Home ideas handicap bathroom design dimensions. Solving these problems during a remodel can help to. The ada bathroom layout (american with disabilities act) is in formulation so that disabled people have equal access in sharing washrooms in public places. You may have noticed safety bars installed inside handicap bathroom stalls in public places. Handicap bathroom ada bathroom bathroom plans bathroom cabinets modern bathroom plan wc. There are many guidelines to consider when building an ada bathroom layout.

Handicapped accessible bathrooms provide safety and comfort handicap bathroom layout. Here are ada bathroom layout designs that are specially designed for elderly & handicapped persons.